Salamander HST
-
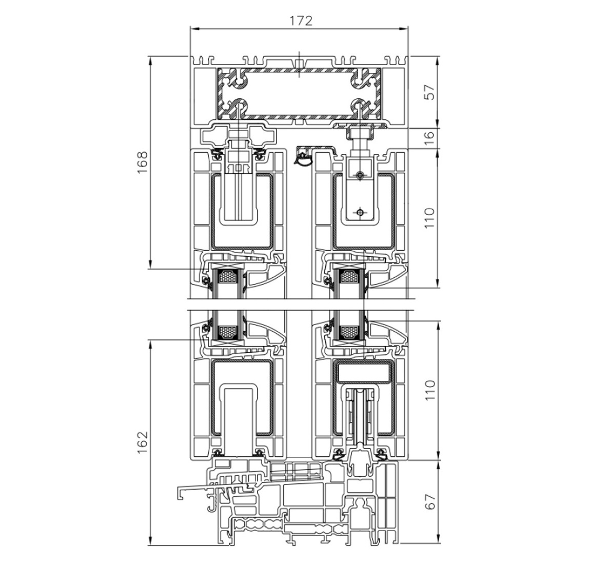
Stavební hloubka 172 mm
- Ud až 0,89 W/m2K (s trojsklem)
- Tři izolační řady
- Bezbariérové provedení
- Hloubka křídel 76 mm
-
Tloušťka skla až 48 mm

[Not a valid template]Plastový systém Salamander HST umožňuje díky své konstrukci vytvářet velké prosklené plochy při zachování velice komfortního ovládání. Je to moderní a oblíbené řešení vstupů na terasy a balkóny.
Díky svým izolačním vlastnostem je posuvný systém vhodný pro stavby od základních požadavků na tepelné ztráty až po nízkoenergetické až pasivní stavby.
- Stavební hloubka profilu 172 mm
- Prostup celým oknem: Ud až 0,89 W/m2K
- Posuvný systém se zdvihem
- Bezbariérové provedení
- Rozměr až 5000 x 2500 mm
- Hmotnost křídel až 400 kg
- Možnost trojsklel až 48 mm
- Široká nabídka prahů
- Možnost elektrického otevírání
- Velký výběr barevného provedení + hliníkové opláštění